廣東星藝裝飾集團廣州有限公司,一起尋找好裝修!
您的當前位置:首頁>裝修案例>白云區南湖半島花園
分享到 微信
設計經驗:7年
上傳作品:4套
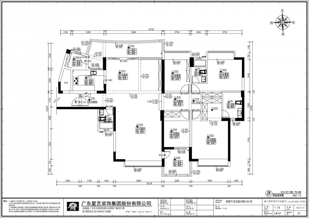
樓盤:南湖半島花園
戶型:四室兩廳
面積:200 m2
設計風格:新中式風格
工程造價:40萬
本案業主為退休養老住所,孫子平時有空會過來住,兒子媳婦也需要住處,業主喜歡中式又不喜歡太復雜的裝飾,最終確定新中式,需要增加家居儲物柜。在設計風格上材質選擇比較鮮明石材和硬包
售前咨詢
裝修熱線
預約量房
回到頂部
24小時全國服務熱線
(c)Copyright 2021 廣東星藝裝飾集團有限公司廣州分公司 版權所有 粵ICP備12080332號 公安部備案號 44010602004978號